48 Kohinoor Road
Kingscote SA 5223
- 10 Parks
        $450,000
      
                  
      Established Commercial Site – Walk in - Walk Out
• 2024m2 - 2 adjoining titles, meticulously presented and maintained• Ideal main road location to maximise your business exposure
• Dual 20m street frontage with bitumen road access, securely fenced
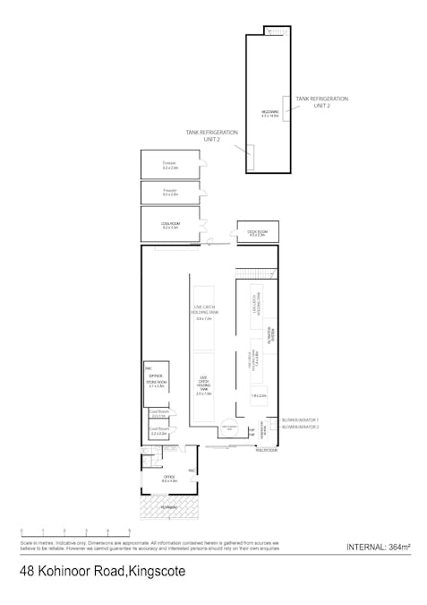
• 22m x 15m high clearance shed with 364m2 floor and storage space including office/reception area with kitchenette and bathroom.
• Fully equipped 35 – 45 tonne per annum fish/lobster and processing factory with live tank holding capacity and ability to upscale.
• Upgraded and compliant electrics.
Information memorandum available
Inclusions:
30 KVA ABLE Kruger generator – 20hrs
2 x Bio-filtered blower/ aerators
13,500ltr saltwater poly storage tank
2 x 4000ltr live holding tanks with pumps
2 x 3000ltr live holding tanks with pumps
1x 2.2m x 2.2m internal refrigerated cool room
1x 2.2m x 1.1m internal refrigerated cool room
1x 3.1m x 4.8m internal storage room/office
1x 6.2m x 3.3m external container freezer
1x 6.2 x 2.5m external container freezer
1x 4.3m x 2.3m external gas plumbed cooking room
Various shelving and workshop bench
Disclaimer: We have in preparing this information used our best endeavours to ensure that the information contained herein is true and accurate but accept no responsibility and disclaim all liability in respect of any errors, omissions, inaccuracies, or misstatements that may occur. Prospective purchasers should make their own enquiries to verify the information contained herein. Elders Real Estate RLA62833
Features
General Features
- Land Area: 2,024sqm
- Commercial Type: Industrial/Warehouse
- Building Area: 364sqm
- Zoning: and allotment 26 - Volume 5477 Folio 262 In the area named Kingscote Hundred of Menzies
- Car Spaces: 10
Can I afford 48 Kohinoor Road?
With access to the best on offer from 30 lenders and complete support and advice from pre-approval to settlement, you can trust an Elders Home Loans broker to find a quick and simple solution.
Get a Quote 
                                      
                  
                                  Elders Real Estate Kangaroo Island
Enquire about 48 Kohinoor Road, Kingscote, SA, 5223
 
         
                       
                       
                       
                       
                       
                       
                       
                       
                       
                       
                       
                       
                       
                       
                       
                       
                       
                       
                       
                       
                       
                       
                       
                       
                      