3 Patterson Street
Whyalla SA 5600
        Contact Agent
      
                  
      CITY PLAZA LOCATION & SPACE
Introducing a prime commercial retail/office space that boasts excellent main street frontage, ensuring high visibility and foot traffic. This versatile property features multiple storage areas with convenient access points, making it ideal for businesses that require ample space for inventory or equipment. The layout includes a well-equipped kitchen and multiple toilets, providing essential amenities for staff and customers alike. Don't miss the opportunity to secure a fantastic location that combines functionality with accessibility!Lets unpack:
*Large glass windows to entrance - perfect for showcasing your stock or use it as the perfect opportunity for some large window signage
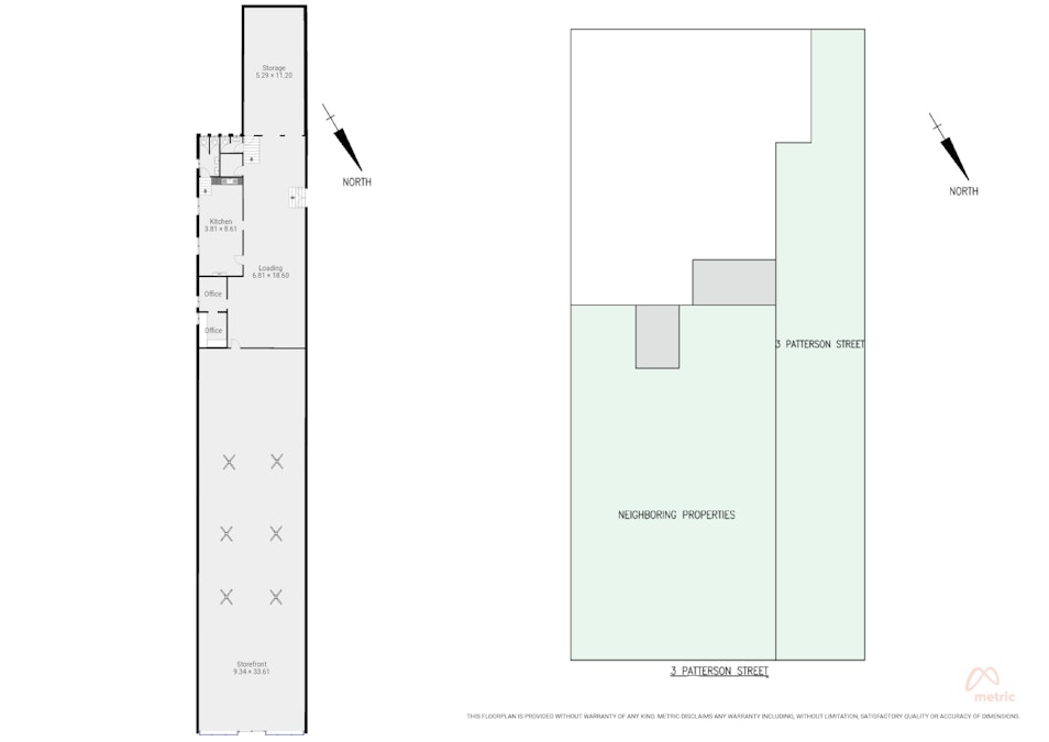
*Tiled entry into 313m2 (approx) of showroom/storefront
*Trendy modern floating floors
*Elegant exposed bricks give that nice touch to make this space feel warm and inviting for your clientele
*Ceiling fans and lights galore!
*Ducted reverse cycle heating & cooling to storefront/showroom
*Concreted loading area which is accessible from Darling Terrace (private alley)
*TWO convenient office spaces or managers retreats
*Large kitchen and meals area
*Two female toilets with seperate for hand basin
*One male toilet
*Step upstairs (split level) to the concreted second storage or stock room
*Storage room also with external access to the rear of the building accessible from Walls street - Great for the larger trucks to access or owner parking
So much more... must be inspected for your next business opportunity or why not INVEST?? This opportunity puts you in a superior location every business owner and investors alike want. With multiple upgrades by our City Council and private landlords, the City Plaza is where the hustle and bustle is. Our beautiful landscaped surroundings in this area along with the short 5-10 minute walk to our stunning Foreshore and Marina; You can not go wrong with this location. 3 Patterson Street is surrounded by eateries, fitness facilities, clothing shops, hotels, banks, realestate offices, hairdressers, lawyers, engineers, tyre places and MORE! It is the place to be !
Location, access points and storefront visibility is key here.
The opportunities are endless -Call NOW!!
Video available on request
Allotment size: 709m2
Storefront size: 313m2
Street frontage: 9.3m
Combined storage size: 185m2
Potential rental income: $40,000-$60,000 + GST per annum - Form R7 attached
Outgoings available upon request
(All measurements are approx only)
Disclaimer: We have in preparing this information used our best endeavours to ensure that the information contained herein is true and accurate but accept no responsibility and disclaim all liability in respect of any errors, omissions, inaccuracies, or misstatements that may occur. Prospective purchasers should make their own enquiries to verify the information contained herein. Elders Real Estate RLA340416
Features
General Features
- Land Area: 709sqm
- Commercial Type: Retail
- Building Area: 500sqm
Can I afford 3 Patterson Street?
With access to the best on offer from 30 lenders and complete support and advice from pre-approval to settlement, you can trust an Elders Home Loans broker to find a quick and simple solution.
Get a QuoteElders Real Estate Commercial South Australia
Enquire about 3 Patterson Street, Whyalla, SA, 5600
 
         
                       
                       
                       
                       
                       
                       
                       
                       
                       
                       
                       
                       
                       
                       
                       
                       
                      